«Баргузин» — фирменный пассажирский поезд РЖД, следующий из Иркутска до Забайкальска и обратно. Первый рейс скорый поезд «Баргузин» совершил 1 марта 2005 года и через два месяца получил статус фирменного.
Маршрут фирменного поезда «Баргузин»
Фирменный состав курсирует по маршруту Иркутск — Забайкальск — Иркутск. Со станции Иркутск Пассажирский поезд «Баргузин» отправляется по понедельникам и пятницам под номером 322И, а со ст. Забайкальск — по средам и воскресеньям под номером 321И.
Расстояние между конечными станциями — 1473 км, которые фирменный поезд «Баргузин» проходит за 31 час. По маршруту состав делает 21 остановку, самая длительная — на станции Чита (56 минут).
Время следования в пути фирменного поезда:
от Иркутска до Забайкальска — 30 часов 45 минут;
от Забайкальска до Иркутска — 30 часов 2 минуты.
Поезд «Баргузин» Забайкальск — Иркутск: расписание туда и обратно
Актуальное расписание фирменного поезда «Баргузин» представлено в таблице (время местное):
Фирменный состав № 321/322 Иркутск — Забайкальск практически полностью укомплектован новыми современными вагонами. Поезд «Баргузин» включает:
плацкартные вагоны;
купейные вагоны;
штабной вагон для пассажиров с ограниченными возможностями здоровья;
вагон-ресторан.
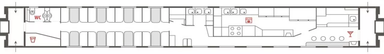
Схема купейного вагонаСхема штабного вагона с купе для инвалидовСхема плацкартного вагонаСхема вагона-ресторана
Поезд «Баргузин»: класс обслуживания
Фирменный состав № 321/322 предлагает пассажирам повышенный уровень комфорта и сервиса. Все вагоны оборудованы:
современными санузлами;
энергосберегающими светильниками;
информационными панелями;
электрическими розетками;
спутниковой системой ГЛОНАСС;
устройствами для контроля электронных проездных;
питьевыми кулерами.
В таблице представлен класс обслуживания в вагонах поезда «Баргузин»:
Тип вагона
Характеристика
Сервис и услуги
Купе
(разрешен провоз домашних животных)
36 посадочных мест
в одном купе — 2 верхние и 2 нижние полки шириной 70 см с защитными планками и откидным столиком
видеосистема
микроволновая печь
холодильник
рацион питания (+ дополнительное)
комплект постельного белья
дорожный гигиенический набор
свежая пресса
Штабной вагон
26 посадочных мест + багажное купе
купе для инвалидов + сопровождающий
рацион питания (+ дополнительное)
комплект постельного белья
Плацкарт
стандартный плацкарт на 54 посадочных места (с 37 по 54 — боковые)
микроволновая печь
холодильник
Для входа в купе повышенной комфортности эконом-класса проводник выдает магнитный ключ в виде пластиковый карты.
Ресторан предлагает разнообразный выбор горячих блюд, закусок, салатов, десертов и напитков. Можно заказать обед прямо в купе. В поезде также осуществляется разносная торговля.
Стоимость билетов на поезд «Баргузин»
Стоимость поездки по данному направлению формируется по системе динамического ценообразования: чем популярнее рейс, тем дороже билет. Цена билета на поезд «Баргузин» Иркутск — Забайкальск составляет:
плацкарт — от 3803 рублей;
купейный вагон — от 4447 рублей;
купейный штабной вагон — от 3683 рублей.
Продажа билетов на фирменный поезд «Баргузин» открывается за 90 дней до его отправления. Помните, чем раньше вы купите билет, тем дешевле он обойдется. Оформить покупку можно на нашем сайте прямо сейчас, без комиссий и переплат.
«Ласточка» — скоростные электропоезда ЭС1 и ЭС2Г, которые используются для пригородных, городских и региональных пассажирских перевозок. Данное семейство пассажирских электропоездов было специально создано по заказу ОАО «Российские железные дороги» немецкой компанией «Siemens AG». В частности, ЭС1 были произведены в г. Крефельд (Германия) на одноименном заводе конгломерата, а ЭС2Г — в г. Верхняя Пышма (Свердловская область) на заводе «Уральские локомотивы». Серии ЭС1П и ЭС2ГП также собирались в России по лицензии Siemens
Услуги для пассажиров поездов "Ласточка" Поезда "Ласточка" предлагают пассажирам различные уровни комфорта: от базового до бизнес-класса. В зависимости от выбранного вагона, доступны такие услуги, как кожаные кресла с регулировкой, мобильный бар, розетки для зарядки устройств, дорожные и детские наборы, пресса, а также гардероб и доступ к Медицентру. Пассажиры бизнес-класса также получают питание и возможность выбора меню. Дополнительно предоставлена информация о телефонах камер хранения забытых вещей на станциях Санкт-Петербург, Бологое и Великий Новгород.