«Белогорье» — скорый пассажирский поезд повышенной комфортности, соединяющий город воинской славы Белгород и столицу России. Почетный статус «фирменный» поезд Белгород — Москва получил в 2004 году. При его отправлении с перрона Белгорода звучит «Прощание славянки», а по прибытии обратно — гимн города.
Маршрут
Фирменный поезд «Белогорье» курсирует по маршруту Белгород — Москва — Белгород. В отличие от других скорых поездов РЖД по данному направлению, поезд является ночным.
Состав ежедневно отправляется с железнодорожного вокзала Белгорода и прибывает на Курский вокзал Москвы. Из Белгорода он следует под номером 072В, а в обратном направлении — 071В.
Расписание движения
Поезд «Белогорье» Москва — Белгород проходит расстояние между конечными станциями в 697 км за 9 часов. Время следования в пути:
из Белгорода в Москву — 9 часов 56 минут;
из Москвы в Белгород — 9 часов 15 минут.
По дороге фирменный состав останавливается на 6 станциях: Тула, Орел, Курск, Солнцево, Ржава, Прохоровка. Самая продолжительная остановка — на станции Курск (15 минут).
Актуальное расписание поезда фирменного Белгород — Москва — Белгород представлено в таблице (время местное):
В состав поезда входят вагоны двух перевозчиков — ФПК и ТКС. Они различаются по классу обслуживания и количеству предоставляемых пассажирам услуг.
Вагоны ФПК — стандартные, выполненные в серо-красной расцветке с логотипом РЖД. Они оборудованы современными биотуалетами и энергосберегающими светильниками.
Вагоны ТКС имеют повышенный уровень комфорта. Помимо биотуалетов, они оснащены кондиционерами, пластиковыми стеклопакетами, электронными информационными табло.
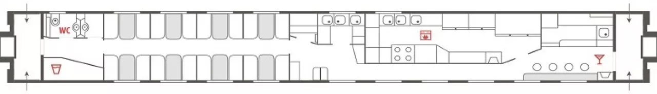
Схема вагона СВСхема купейного вагонаСхема штабного вагонаСхема плацкартного вагонаСхема вагона-ресторана
Класс обслуживания
«Белогорье» — поезд с современными комфортабельными вагонами. В таблице представлена их краткая характеристика:
горячее питание и напитки
комплекты постельного белья
полотенце, тапочки
дорожный гигиенический набор
свежая пресса
Купе (комфорт)
2 нижние и 2 верхние полки шириной 70 см
гигиенический душ
телевизор
розетка 220В
рацион питания
комплект постельного белья
тапочки, полотенце
дорожный гигиенический набор
печатные издания
Купе
2 верхние и 2 нижние полки шириной 70 см
защитные планки
откидной столик
рацион питания
комплект постельного белья
дорожный гигиенический набор
свежая пресса
Плацкарт
аналогичен плацкартным вагонам в других поездах
постельное белье
Ресторан
современный дизайн
широкий выбор горячих блюд, закусок, салатов, десертов и напитков
заказ блюд с доставкой в купе
Стоимость билетов
Цена билетов на фирменный поезд «Белогорье» формируется по системе динамического ценообразования и зависит от спроса на рейс, типа вагона и даты покупки билета. Чем выше класс обслуживания и популярнее направление, тем дороже обойдется поездка.
Стоимость билетов на поезд «Белогорье»:
плацкарт — от 1900 рублей;
купе — от 2800 рублей;
купе (комфорт) — от 3000 рублей;
СВ — от 5600 рублей;
СВ (бизнес-класс) — от 6400 рублей.
Продажа билетов стартует за 90 дней до отправления фирменного состава. Купить жд билеты можно в кассе дальнего следования РЖД или онлайн на нашем сайте (без комиссий).
«Ласточка» — скоростные электропоезда ЭС1 и ЭС2Г, которые используются для пригородных, городских и региональных пассажирских перевозок. Данное семейство пассажирских электропоездов было специально создано по заказу ОАО «Российские железные дороги» немецкой компанией «Siemens AG». В частности, ЭС1 были произведены в г. Крефельд (Германия) на одноименном заводе конгломерата, а ЭС2Г — в г. Верхняя Пышма (Свердловская область) на заводе «Уральские локомотивы». Серии ЭС1П и ЭС2ГП также собирались в России по лицензии Siemens
Услуги для пассажиров поездов "Ласточка" Поезда "Ласточка" предлагают пассажирам различные уровни комфорта: от базового до бизнес-класса. В зависимости от выбранного вагона, доступны такие услуги, как кожаные кресла с регулировкой, мобильный бар, розетки для зарядки устройств, дорожные и детские наборы, пресса, а также гардероб и доступ к Медицентру. Пассажиры бизнес-класса также получают питание и возможность выбора меню. Дополнительно предоставлена информация о телефонах камер хранения забытых вещей на станциях Санкт-Петербург, Бологое и Великий Новгород.