«Экспресс» — скорый фирменный пассажирский поезд РЖД, соединяющий две столицы нашей Родины — Москву и Санкт-Петербург. Состав введен в эксплуатацию в 1976 году и стал вторым фирменным поездом на данном маршруте. По своей комфортабельности и качеству обслуживания, он ничем не отличается от «Красной стрелы».
Маршрут
Поезд «Экспресс» ежедневно курсирует по маршруту Москва — Санкт-Петербург и обратно. Он ходит с сентября по май 6 дней в неделю (кроме субботы). Пункт отправления поезда — станция Москва-Октябрьская (Ленинградский вокзал), пункт прибытия — Санкт-Петербург-Главный (Московский вокзал). В Питер состав уходит под номером 004А, на пути в Москву нумерация меняется на 003А.
Расписание движения
Поезд «Экспресс» преодолевает расстояние в 650 км ровно за 9 часов в каждую сторону. В пути он делает только технические остановки.
Актуальное расписание «Экспресс» поезда представлено в таблице (время отправления и прибытия — местное):
В состав фирменного поезда «Экспресс» входят комфортабельные вагоны класса «Люкс», спальные и купейные высшей категории, штабной с местом для инвалида, вагон-ресторан. Плацкартных вагонов не предусмотрено. Максимальное количество мест в поезде — 426.
Фирменный состав оборудован по последнему слову техники. В каждом вагоне есть кондиционер, биотуалет, бесплатный Wi-Fi, кофемашина. Пассажирам также предоставляется новый постельный комплект и санитарно-гигиенический набор улучшенного качества.
Безопасность пассажиров в дороге обеспечивают сотрудники ЧОП и железнодорожной полиции. Работа оборудования контролируется с помощью спутниковой системы, а в каждом вагоне поезда есть пожарная сигнализация.
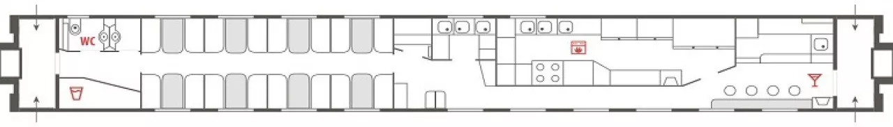
Схема вагона «Люкс»Схема вагона СВСхема купейного вагонаСхема штабного вагонаСхема вагона-ресторана
Класс обслуживания
Поезд «Экспресс» характеризуется высочайшим уровнем обслуживания. Он придется по вкусу искушенным пассажирам, привыкшим путешествовать с максимальным комфортом.
Краткая характеристика вагонов и входящих в стоимость билета услуг представлена в таблице:
Тип вагона
Характеристика
Сервис и услуги
Люкс
4 и 6-местные купе:
гостиная-спальня санитарно-гигиенический блок занимает площадь 2 или 1,5 обычных купе соответственно
салон-бар (в вагоне с 4 купе)
2-местное купе:
нижний раскладной диван
верхняя спальная полка
кресло
платяной шкаф
столик
в каждом купе:
индивидуальный санузел
телевизор
DVD-проигрыватель
карта-ключ доступа в купе
кнопка вызова проводника
индивидуальный кондиционер
горячее питание и напитки
комплект постельного белья полотенца, халат и тапочки
санитарно-гигиенические набор
свежая пресса
бесплатный трансфер с вокзала до места назначения
СВ
нижний мягкий диван
верхнее спальнее место
умывальник
откидное кресло
столик
телевизор
горячее питание
постельное белье
полотенце
санитарно-гигиенический набор
пресса
горячее питание и напитки
постельное белье
полотенца
санитарно-гигиенический набор
пресса
Пассажирам вагонов класса «Люкс» в день отправления и прибытия бесплатно доступны услуги сервисных центров:
пребывание в залах ожидания повышенной комфортности;
комната личной гигиены;
информационно-справочные услуги;
печатные издания;
зарядка для гаджетов;
спутниковое ТВ;
Wi-Fi;
безалкогольные напитки.
Плотно поужинать или просто перекусить в дороге можно в вагоне-ресторане, который предлагает широкий выбор горячих блюд, закусок, салатов, десертов, напитков (в том числе, эксклюзивный алкоголь). По желанию, пищу доставят прямо в купе.
Стоимость билетов
Продажа билетов на фирменный поезд «Экспресс» стартует за 90 дней до отправления состава. Их стоимость постоянно варьируется и зависит от спроса на рейс, типа вагона и даты покупки проездного документа. Самые дешевые билеты продаются в день открытия продаж и на покупке можно сэкономить.
Цена билета в среднем составляет:
купе — от 2900 рублей;
СВ — от 4900 рублей;
Люкс — от 10 700 рублей.
Узнать точную информацию о наличии свободных мест и купить жд билет на фирменный поезд «Экспресс» можно в кассах дальнего следования РЖД или онлайн на нашем сайте.
«Ласточка» — скоростные электропоезда ЭС1 и ЭС2Г, которые используются для пригородных, городских и региональных пассажирских перевозок. Данное семейство пассажирских электропоездов было специально создано по заказу ОАО «Российские железные дороги» немецкой компанией «Siemens AG». В частности, ЭС1 были произведены в г. Крефельд (Германия) на одноименном заводе конгломерата, а ЭС2Г — в г. Верхняя Пышма (Свердловская область) на заводе «Уральские локомотивы». Серии ЭС1П и ЭС2ГП также собирались в России по лицензии Siemens
Услуги для пассажиров поездов "Ласточка" Поезда "Ласточка" предлагают пассажирам различные уровни комфорта: от базового до бизнес-класса. В зависимости от выбранного вагона, доступны такие услуги, как кожаные кресла с регулировкой, мобильный бар, розетки для зарядки устройств, дорожные и детские наборы, пресса, а также гардероб и доступ к Медицентру. Пассажиры бизнес-класса также получают питание и возможность выбора меню. Дополнительно предоставлена информация о телефонах камер хранения забытых вещей на станциях Санкт-Петербург, Бологое и Великий Новгород.
Четвертый вагон скоростного поезда «Сапсан» относится к классу «Экономический». Как и другие вагоны фирменного
Отзывы пассажиров:
1
СЕРГЕЙ
ЧТО ВЫ ВСЁ СРАВНИВАЕТЕ ? СЕЙЧАС В РЖД ВАГОНЫ ОДНА КАЗЁНЩИНА ! НЕ ШТОРКИ , НЕ ЗАНОВЕСОЧКИ ! В 90-Е ТАКОГО НЕБЫЛО ! НЕТ НИ ГРАММУ КОМФОРТА !!! УЧИТЕСЬ ДЕЛАТЬ ВАГОНЫ ОТ АМЕНДОРФ !!! МЫ НАВЕРНО НИКОГДА НЕ ДОСТИГНЕМ КОМФОРТА В НАШИХ ВАГОНАХ ! ТАК И БУДЕМ ДЕЛАТЬ ВСЁ НА АТВАЛИ !!!
ЧТО ВЫ ВСЁ СРАВНИВАЕТЕ ? СЕЙЧАС В РЖД ВАГОНЫ ОДНА КАЗЁНЩИНА ! НЕ ШТОРКИ , НЕ ЗАНОВЕСОЧКИ ! В 90-Е ТАКОГО НЕБЫЛО ! НЕТ НИ ГРАММУ КОМФОРТА !!! УЧИТЕСЬ ДЕЛАТЬ ВАГОНЫ ОТ АМЕНДОРФ !!! МЫ НАВЕРНО НИКОГДА НЕ ДОСТИГНЕМ КОМФОРТА В НАШИХ ВАГОНАХ ! ТАК И БУДЕМ ДЕЛАТЬ ВСЁ НА АТВАЛИ !!!