«Енисей» — скорый пассажирский поезд № 55/56, соединяющий столицы Красноярского края и России. Свое название фирменный состав получил в честь одной из величайших рек Сибири — Енисей. В первую поездку поезд отправился с перрона железнодорожного вокзала Красноярска в декабре 1993 года. Изначально его вагоны были выкрашены в темно-синий цвет, сейчас состав полностью обновлен и выполнен в корпоративных цветах ОАО «РЖД».
Маршрут
Фирменный состав курсирует по маршруту Красноярск — Москва — Красноярск. В пути он проходит несколько крупных городов: Юрга, Новосибирск, Омск, Тюмень, Екатеринбург, Пермь, Киров, Нижний Новгород, Владимир.
Поезд «Енисей» следует по маршруту круглогодично, отправляясь:
из Красноярска по четным числам;
из Москвы — по нечетным.
Отправной пункт поезда «Енисей» — станция Красноярск-Пасс., а пункт прибытия — Ярославский вокзал столицы. С перрона жд вокзала Красноярска поезд уходит под номером 055Ы, а в обратном направлении из Москвы — 056Ы.
Расписание движения
Поезд 055Ы «Енисей» проходит расстояние между двумя конечными станциями в 4065 км. Время следования в пути:
из Красноярска до Москвы — 2 суток 13 часов 22 минуты;
из Москвы до Красноярска — 2 суток 12 часов 25 минут.
По дороге фирменный состав останавливается на 32 станциях. Самая длинная остановка — на станции Новосибирск-Главный (45 минут).
Фирменный поезд «Енисей»: расписание в таблице (время отправления и прибытия местное).
В составе поезда курсируют только современные вагоны, которые оборудованы биотуалетами, кондиционерами, системой контроля управления доступом в купе, электронными информационными табло и розетками.
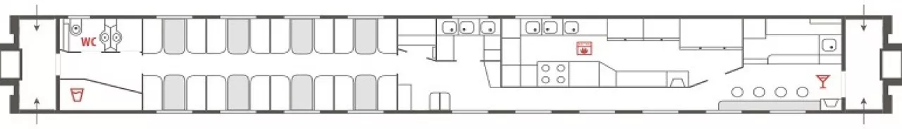
Схема вагона СВСхема купейного вагонаСхема штабного вагонаСхема плацкартного вагонаСхема вагона-ресторана
Класс обслуживания
«Енисей» — поезд для комфортабельного путешествия. Например, за дополнительную плату в штабном вагоне можно насладиться свежесваренным напитком из кофе-машины или принять горячий душ. В таблице представлена краткая характеристика вагонов фирменного состава:
Тип вагона
Характеристика
Сервис и услуги
СВ
2 верхние полки с откидным столиком
телевизор
карта-ключ доступа в купе
кнопка вызова проводника
розетка 220 В
питание
постельное белье, полотенца
дорожный гигиенический набор
печатные издания
Купе
2 нижние и 2 верхние полки шириной 70 см
откидной столик
защитные планки
индивидуальные светильники
питание
постельное белье
дорожный гигиенический набор
печатные издания
Плацкарт
аналогичен плацкартным вагонам в других поездах
комплект постельного белья
Вагон-ресторан
современный дизайн
широкий выбор горячих блюд, закусок, салатов, десертов и напитков
специальные наборы блюд (завтрак, бизнес-ланч, меню детского питания)
заказ блюд с доставкой в купе
наличный и безналичный расчет
Стоимость билетов
Стоимость поездки по направлению Красноярск — Москва напрямую зависит от спроса на рейс, типа вагона и даты покупки жд билета. Цена билетов на поезд № 055/056 «Енисей» постоянно варьируется и в среднем составляет:
плацкарт — от 4300 рублей;
купе — от 9500 рублей;
СВ — от 20 500 рублей;
штабной — от 8500 рублей (для инвалида и сопровождающего).
Купить билет на фирменный поезд «Енисей» можно в кассе дальнего следования РЖД или прямо сейчас на нашем сайте (без комиссий и переплат).
«Ласточка» — скоростные электропоезда ЭС1 и ЭС2Г, которые используются для пригородных, городских и региональных пассажирских перевозок. Данное семейство пассажирских электропоездов было специально создано по заказу ОАО «Российские железные дороги» немецкой компанией «Siemens AG». В частности, ЭС1 были произведены в г. Крефельд (Германия) на одноименном заводе конгломерата, а ЭС2Г — в г. Верхняя Пышма (Свердловская область) на заводе «Уральские локомотивы». Серии ЭС1П и ЭС2ГП также собирались в России по лицензии Siemens
Услуги для пассажиров поездов "Ласточка" Поезда "Ласточка" предлагают пассажирам различные уровни комфорта: от базового до бизнес-класса. В зависимости от выбранного вагона, доступны такие услуги, как кожаные кресла с регулировкой, мобильный бар, розетки для зарядки устройств, дорожные и детские наборы, пресса, а также гардероб и доступ к Медицентру. Пассажиры бизнес-класса также получают питание и возможность выбора меню. Дополнительно предоставлена информация о телефонах камер хранения забытых вещей на станциях Санкт-Петербург, Бологое и Великий Новгород.