«Карелия» — фирменный поезд РЖД, соединяющий Москву и Петрозаводск. Впервые поезд «Карелия» отправился в рейс в ноябре 1985 года, и уже в 1996 году получил почетный статус фирменного состава. В связи с развитием в России туризма, поезд стал популярен среди путешественников, желающих полюбоваться дикой природой Республики Карелия.
Маршрут
Ночной фирменный поезд «Карелия» курсирует по маршруту Петрозаводск — Москва и обратно ежедневно круглый год, кроме 31 декабря.
Отправной пункт состава — Петрозаводск-Пасс., а прибытия — станция Москва-Октябрьская (Ленинградский вокзал столицы). С начальной станции поезд отправляется под номером 017А, а в обратном направлении — 018А.
Расписание движения
По маршруту Москва — Петрозаводск фирменный поезд «Карелия» проходит расстояние в 922 км за полдня. Время следования в пути:
от Петрозаводска до Москвы — 11 часов 53 минуты;
от Москвы до Петрозаводска — 11 часов 50 минут.
В пути состав останавливается на в 7 городах: Свирь, Подпорожье, Лодейное Поле, Волхов, Малая Вишера, Бологое, Тверь. Самая длительная стоянка — на станции Свирь (30 минут).
Актуальное на поезд «Карелия» расписание представлено в таблице (отправление и прибытие указано по местному времени):
В состав «Карелии» входят вагоны последнего поколения, оформленные в фирменном серо-красном стиле РЖД. Поскольку состав фирменный, то включает в себя вагоны повышенного комфорта:
1 «Люкс»;
1 СВ;
5 купейных;
8 плацкартных;
1 вагон-ресторан.
Вагон № 9 — штабной и оборудован для перевозки людей с ограниченными возможностями, а вагон № 15 — для пассажиров, предпочитающих путешествовать VIP-классом.
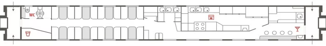
Схема вагона «Люкс»Схема вагона СВСхема купейного вагонаСхема штабного вагонаСхема плацкартного вагонаСхема вагона-ресторана
Класс обслуживания
«Карелия» — визитная карточка Республики. Это современный поезд для комфортабельного путешествия с высококлассным обслуживанием и вежливым персоналом. В таблице представлена краткая характеристика вагонов и предоставляемого сервиса:
Тип вагона
Характеристика
Сервис и услуги
Люкс
нижний мягкий диван
верхняя спальная полка
душевая кабина
умывальник
биотуалет
телевизор
кнопка вызова проводника
рацион питания
напитки
постельное белье
полотенце, халат, тапочки
санитарно-гигиенический набор
пресса
рацион питания
постельное белье
полотенце
санитарно-гигиенический набор
печатные издания
Плацкарт
аналогичен плацкартным вагонам в других поездах
постельное белье
Проголодавшиеся пассажиры могут посетить великолепный вагон-ресторан, выполненный в современном дизайне. Выбор меню обширный: от горячих ароматных супов до свежих закусок и салатов. В вагоне-ресторане можно просто выпить свежесваренного кофе с десертом или полноценно поужинать.
Пассажиры, купившие билет в вагон класса «Люкс», в день отправления и прибытия могут рассчитывать на бесплатные услуги сервисных центров:
пребывание в зале ожидания повышенной комфортности;
комната личной гигиены;
информационно-справочные услуги;
пресса;
зарядка гаджетов;
спутниковое ТВ и Wi-Fi;
безалкогольные напитки.
Стоимость билетов
Поезд «Карелия» входит в программу динамического ценообразования. Это значит, что цена на билеты постоянно меняется и зависит от спроса на конкретную дату, типа выбранного вагона, даты покупки проездного документа.
Цена билета в вагон:
плацкарт — от 2400 рублей;
купе — от 3900 рублей;
СВ — от 7700 рублей;
Люкс — от 15 400 рублей.
Продаются билеты в кассе дальнего следования на вокзале и онлайн за 90 дней до отправления поезда «Карелия». Купить билет можно прямо сейчас на нашем сайте не взимается комиссия, поскольку он является официальным партнером РЖД, не выходя из дома и не переплачивая.
«Ласточка» — скоростные электропоезда ЭС1 и ЭС2Г, которые используются для пригородных, городских и региональных пассажирских перевозок. Данное семейство пассажирских электропоездов было специально создано по заказу ОАО «Российские железные дороги» немецкой компанией «Siemens AG». В частности, ЭС1 были произведены в г. Крефельд (Германия) на одноименном заводе конгломерата, а ЭС2Г — в г. Верхняя Пышма (Свердловская область) на заводе «Уральские локомотивы». Серии ЭС1П и ЭС2ГП также собирались в России по лицензии Siemens
Услуги для пассажиров поездов "Ласточка" Поезда "Ласточка" предлагают пассажирам различные уровни комфорта: от базового до бизнес-класса. В зависимости от выбранного вагона, доступны такие услуги, как кожаные кресла с регулировкой, мобильный бар, розетки для зарядки устройств, дорожные и детские наборы, пресса, а также гардероб и доступ к Медицентру. Пассажиры бизнес-класса также получают питание и возможность выбора меню. Дополнительно предоставлена информация о телефонах камер хранения забытых вещей на станциях Санкт-Петербург, Бологое и Великий Новгород.