Поезд «Лев Толстой», курсирующий по маршруту Москва — Хельсинки, назван в честь известного русского писателя. На российских железных дорогах состав появился 30 мая 1975 года и стал первым ночным поездом, развивающим скорость более 120 км/ч. За прошедшее время «Лев Толстой» кардинально изменился — это современный фирменный поезд РЖД, который доставляет пассажиров в Финляндию и обратно с максимальным комфортом.
Поезд «Лев толстой»: маршрут
Состав курсирует по данному направлению ежедневно, кроме субботы. Поезд «Лев Толстой» отбывает с Ленинградского вокзала столицы и прибывает на станцию Хельсинки. На своем пути он проходит через города: Тверь, Санкт-Петербург, Выборг, Вайниккалу, Коуволу, Лахти, Тиккурила, Пасила.
Время в пути следования — 14 часов 27 минут до Хельсинки и 14 часов 32 минуты до столицы. За это время «Лев Толстой» проезжает 1108 км.
«Лев Толстой» поезд: расписание
Состав под номером 032А отправляется вечером из столицы, а из Хельсинки утром — № 031А. В таблице представлено актуальное расписание следования состава:
Будьте внимательны, на билетах указывается время страны отправления состава. Например, купив билет на поезд «Лев Толстой» Санкт-Петербург — Хельсинки, вы обнаружите московское время.
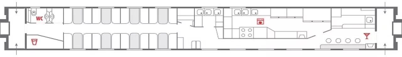
«Лев Толстой» поезд РЖД: схема подвижного состава
В состав пассажирского поезда включены новые современные вагоны: 8 купейных, 5 спальных (СВ), один «Люкс». Пассажиры также могут воспользоваться вагоном-рестораном, а люди с ограниченными возможностями заказать места в отдельном штабном вагоне.
Купе в вагонах соответствует габаритам РИЦ — просторнее, чем стандартное, и практически не отличается от СВ. Купе в поезде «Лев Толстой» 4-местное. Однако если верхние полки не заняты, можно легко их поднять и превратить в СВ.
Нижние полки в дневное время можно использовать в качестве диванов с мягкой спинкой. В центре спинки есть откидной подлокотник с подстаканниками, так что диван можно превратить в два удобных кресла.
Нумерация вагонов в Москве с головы поезда, в Хельсинки — с хвоста.
Поезд «Лев Толстой» Москва — Хельсинки: класс комфорта
Посмотреть на уровень сервиса и услуг в поезде «Лев Толстой» можно в таблице:
Тип вагона
Сервис и услуги
«Люкс»
(выкупается целиком)
душ и биотуалет (в каждом купе)
электрическая розетка
DVD-проигрыватель и плазменный экран
кондиционер
новое постельное белье
банный набор: халат, тапочки, полотенце, гигиенические принадлежности
СВ
кондиционер
биотуалет (всего два в вагоне, в одном есть душ)
постельное белье и махровое полотенце
2 электрические розетки
полки для мелочей
индивидуальное освещение для каждой полки
информационное табло
Купе
аналогично СВ
Отдельно стоит упомянуть про вагон-ресторан, оформленный в духе конца XIX — начала XX века. Старинный интерьер напоминает пассажирам о временах, когда жил и творил русский писатель, в честь которого назван поезд — Лев Николаевич Толстой. В меню вагона-ресторана включены блюда из «Поваренной книги» Софьи Толстой.
Билет на поезд «Лев Толстой» из Москвы в Хельсинки: цена
Стоимость билетов по данному направлению формируется по системе динамического ценообразования: чем больше билетов раскуплено, тем дороже обойдется поездка. Своего максимума цена на жд билет достигает в летние месяцы, а минимума — в январе.
Стоимость билета в купейный вагон поезда «Лев Толстой» начинается от 5195 рублей, в спальный вагон — от 7655 рублей, в «Люкс» — от 20 338 рублей. Помните, чем меньше дней остается до поездки, тем выше будет цена билета.
На «Лев Толстой» поезд купить билет можно за 90 дней до отправления состава. Вы можете оформить покупку на нашем сайте прямо сейчас, без комиссий и переплат.
Сервис на поезде «Лев Толстой»
В стоимость билета включены:
гигиенические дорожные наборы (для спальных и люксовых вагонов);
аудиогид, рассказывающий о достопримечательностях и событиях, произошедших по маршруту следования состава (на русском и английском языках);
питание (зависит от класса обслуживания).
Тип вагона
Питание
вагон «Люкс»
горячий ужин (из Москвы)
горячий завтрак (из Хельсинки)
бизнес-класс
горячий завтрак или ужин, напитки
эконом-класс
холодные закуски
За дополнительную плату можно приобрести в пути хороший чай и кофе, кондитерские изделия, сувенирную продукцию. В поезде «Лев Толстой» есть возможность оформить возврат налогов по системе «Tax-free», а также перевезти автомобиль в специализированном вагоне за отдельную плату (от 8000 рублей).
«Ласточка» — скоростные электропоезда ЭС1 и ЭС2Г, которые используются для пригородных, городских и региональных пассажирских перевозок. Данное семейство пассажирских электропоездов было специально создано по заказу ОАО «Российские железные дороги» немецкой компанией «Siemens AG». В частности, ЭС1 были произведены в г. Крефельд (Германия) на одноименном заводе конгломерата, а ЭС2Г — в г. Верхняя Пышма (Свердловская область) на заводе «Уральские локомотивы». Серии ЭС1П и ЭС2ГП также собирались в России по лицензии Siemens
Услуги для пассажиров поездов "Ласточка" Поезда "Ласточка" предлагают пассажирам различные уровни комфорта: от базового до бизнес-класса. В зависимости от выбранного вагона, доступны такие услуги, как кожаные кресла с регулировкой, мобильный бар, розетки для зарядки устройств, дорожные и детские наборы, пресса, а также гардероб и доступ к Медицентру. Пассажиры бизнес-класса также получают питание и возможность выбора меню. Дополнительно предоставлена информация о телефонах камер хранения забытых вещей на станциях Санкт-Петербург, Бологое и Великий Новгород.