«Нижегородец» — фирменный пассажирский поезд Горьковской железной дороги, курсирующий по маршруту Нижний Новгород — Москва и обратно. Поезд введён в эксплуатацию в 1992 году, в своем обращении имеет 2 состава и формируется в вагонном депо Нижнего Новгорода.
Маршрут
Фирменный поезд «Нижегородец»— ночной, и ежедневно курсирует между Нижним Новгородом и столицей. Отправной пункт — станция Нижний Новгород-Моск., а пункт прибытия — Ярославский вокзал Москвы. С начальной станции состав уходит под номером 035Г, а в обратном направлении из столицы — 036Э.
Расписание движения
Поезд Москва — Нижний Новгород «Нижегородец» преодолевает расстояние между двумя станциями в 461 км. Время следования в пути:
из Нижнего Новгорода до Москвы — 6 часов 54 минуты;
из Москвы до Нижнего Новгорода — 6 часов 21 минута.
По дороге состав делает 5 остановок на станциях: Дзержинск, Ильино, Вязники, Ковров, Владимир. Самая продолжительная стоянка — во Владимире (10 минут).
В таблице представлено актуальное на «Нижегородец» поезд расписание (время отправления и прибытия — местное):
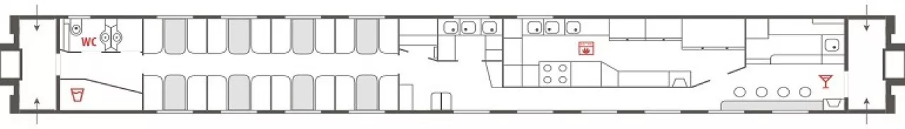
Все вагоны — современные, выполнены в корпоративных цветах РЖД и оборудованы кондиционерами, биотуалетами и электронными табло. Точная схема состава зависит от сезона года.
Схема вагона СВСхема купейного вагонаСхема штабного вагонаСхема плацкартного вагонаСхема вагона-ресторана
Класс обслуживания
Поезд «Нижегородец» Москва — Нижний Новгород оснащен современными вагонами, позволяющими любому пассажиру с комфортом провести время в дороге. В таблице представлена их краткая характеристика:
Тип вагона
Характеристика
Сервис и услуги
СВ
2 нижние полки
откидной столик
карта-ключ доступа в купе
телевизор
горячее питание и напитки
постельное белье
полотенца, тапочки
санитарно-гигиенический набор
печатные издания
Купе
2 нижние и 2 верхние полки
защитные планки
откидной столик
рацион питания
постельное белье
санитарно-гигиенический набор
печатные издания
Плацкарт
аналогичен плацкартным вагонам в других поездах
постельное белье
Ресторан
современный дизайн
богатый ассортимент меню ( горячие блюда, закуски, салаты, десерты и напитки)
заказ блюд с доставкой в купе
Стоимость билетов
Поезд «Нижегородец» участвует в программе динамического ценообразования. Это значит, что цена билета напрямую зависит от спроса на данный рейс. Также на стоимость проездного документа влияет тип вагона и дата покупки билета.
Стоимость билетов:
плацкарт — от 1600 рублей;
купе — от 3000 рублей;
СВ — от 5900 рублей.
Продаются билеты на фирменный поезд № 035/036 сообщением Нижний Новгород — Москва за 90 суток до отправления состава. Купить жд билет можно в кассе дальнего следования или онлайн на нашем сайте (официальный партнер РЖД).
«Ласточка» — скоростные электропоезда ЭС1 и ЭС2Г, которые используются для пригородных, городских и региональных пассажирских перевозок. Данное семейство пассажирских электропоездов было специально создано по заказу ОАО «Российские железные дороги» немецкой компанией «Siemens AG». В частности, ЭС1 были произведены в г. Крефельд (Германия) на одноименном заводе конгломерата, а ЭС2Г — в г. Верхняя Пышма (Свердловская область) на заводе «Уральские локомотивы». Серии ЭС1П и ЭС2ГП также собирались в России по лицензии Siemens
Услуги для пассажиров поездов "Ласточка" Поезда "Ласточка" предлагают пассажирам различные уровни комфорта: от базового до бизнес-класса. В зависимости от выбранного вагона, доступны такие услуги, как кожаные кресла с регулировкой, мобильный бар, розетки для зарядки устройств, дорожные и детские наборы, пресса, а также гардероб и доступ к Медицентру. Пассажиры бизнес-класса также получают питание и возможность выбора меню. Дополнительно предоставлена информация о телефонах камер хранения забытых вещей на станциях Санкт-Петербург, Бологое и Великий Новгород.