«Океан» — поезд РЖД, получивший статус фирменного в 2003 году. Пассажирский состав курсирует между двумя крупными городами Дальнего Востока — Владивостоком и Хабаровском. Этот комфортабельный состав оформлен в сине-голубой гамме, напоминая о Тихом океане. Однако за последние годы многие вагоны заменили на современные, с кондиционерами и биотуалетами.
Маршрут
Фирменный поезд «Океан» — ночной. Его маршрут ежедневно пролегает по Дальневосточной железной дороге от Владивостока до Хабаровска и обратно. Отправной пункт поезда — железнодорожный вокзал Владивостока, а пункт прибытия — станция Хабаровск-1. С начальной станции состав отправляется под номером 005Э, а в обратном направлении — 006Э.
Расписание движения
Поезд «Океан» Хабаровск — Владивосток проходит расстояние между двумя конечными станциями в 767 км в среднем за 12 часов. Время следования в пути:
из Хабаровска до Владивостока — 11 часов 42 минуты;
из Владивостока до Хабаровска — 12 часов 2 минуты.
Следуя по маршруту, поезд останавливается на 8 станциях. Самые длительные стоянки — на станциях Ружино и Уссурийск (15 минут).
Актуальное расписание поезда «Океан» представлено в таблице (время отправления и прибытия — местное):
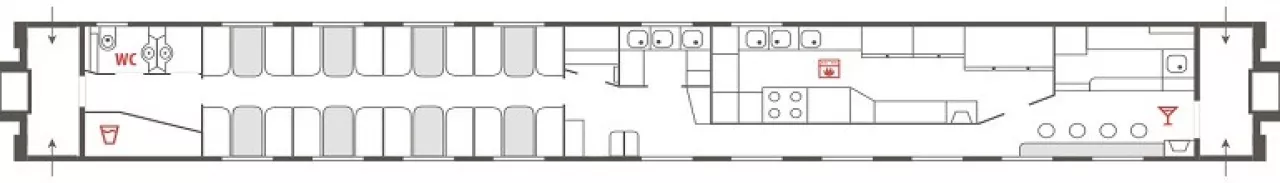
В состав фирменного поезда сообщением Владивосток — Хабаровск входят:
1 вагон класса «Люкс»;
1 спальный вагон (СВ);
7 купейных вагонов;
1 штабной вагон с местом для инвалида;
1 вагон-ресторан.
Плацкартных вагонов в данном составе нет. Все вагоны предназначены для комфортабельного путешествия пассажиров: оборудованы биотуалетами, электрическими розетками, энергосберегающими светильниками и информационными табло.
Схема вагона «Люкс»Схема вагона СВСхема купейного вагонаСхема штабного вагонаСхема вагона-ресторана
Класс обслуживания
В таблице представлена краткая характеристика вагонов фирменного поезда «Океан»:
Тип вагона
Характеристика
Сервис и услуги
Люкс
2 комнаты
нижний диван
верхняя спальная
телевизор
душевая кабина
розетка 220В
карта-ключ доступа в купе
кнопка вызова проводника
ужин или завтрак (на выбор)
напитки
постельное белье
полотенце, халат, тапочки
санитарно-гигиенический набор
печатные издания
ужин или завтрак (на выбор)
напитки
постельное белье
полотенце, тапочки
санитарно-гигиенический набор
печатные издания
Купе
2 нижние и 2 верхние полки
защитные планки
откидной столик
рацион питания
постельное белье
санитарно-гигиенический набор
печатные издания
В вагон-ресторане можно насладиться изысканным меню из разнообразных горячих блюд, закусок, салатов, десертов и напитков. Осуществляется доставка пищи прямо в купе через проводника.
Стоимость билетов
Стоимость билетов на фирменный состав ежедневно меняется, поскольку напрямую зависит от спроса на рейс. На цену также влияет класс обслуживания и дата оформления проездного документа. Купить билет на поезд «Океан» можно за 90 дней до отправления состава.
Стоимость билетов в вагоны:
купе — от 3500 рублей;
СВ — от 7000 рублей;
Люкс — от 13 700 рублей.
Продаются билеты в кассе дальнего следования на вокзале и онлайн. При покупке билетов на нашем сайте не взимается комиссия, поскольку он является официальным партнером РЖД.
«Ласточка» — скоростные электропоезда ЭС1 и ЭС2Г, которые используются для пригородных, городских и региональных пассажирских перевозок. Данное семейство пассажирских электропоездов было специально создано по заказу ОАО «Российские железные дороги» немецкой компанией «Siemens AG». В частности, ЭС1 были произведены в г. Крефельд (Германия) на одноименном заводе конгломерата, а ЭС2Г — в г. Верхняя Пышма (Свердловская область) на заводе «Уральские локомотивы». Серии ЭС1П и ЭС2ГП также собирались в России по лицензии Siemens
Услуги для пассажиров поездов "Ласточка" Поезда "Ласточка" предлагают пассажирам различные уровни комфорта: от базового до бизнес-класса. В зависимости от выбранного вагона, доступны такие услуги, как кожаные кресла с регулировкой, мобильный бар, розетки для зарядки устройств, дорожные и детские наборы, пресса, а также гардероб и доступ к Медицентру. Пассажиры бизнес-класса также получают питание и возможность выбора меню. Дополнительно предоставлена информация о телефонах камер хранения забытых вещей на станциях Санкт-Петербург, Бологое и Великий Новгород.
Плацкартные вагоны в этом поезде есть !!! И это хорошо.
Ужасная еда,вагон старый,за такую цену могли бы улучшить сервис.вагон св