Поезд «Омич» — фирменный пассажирский состав, курсирующий по направлению Омск — Нижневартовск с 2006 года. Он укомплектован только новыми современными вагонами для комфортного путешествия каждого пассажира: с питанием, свежим льняным бельем, круглосуточной информацией о движении, вежливым персоналом.
Маршрут
Фирменный поезд «Омич» курсирует через день по четным числам в обоих направлениях. Пункт отправления поезда — Омск-Пасс., а прибытия — станция Нижневартовск-1. С вокзала Омска состав отправляется под номером 115Н, а в обратном направлении меняет нумерацию на 115Е. Полный маршрут указан на карте.
Расписание движения
Между конечными станциями «Омич» проходит расстояние в 1493 км в среднем за одни сутки. Время следования в пути:
из Омска до Нижневартовска — 1 сутки 1 час 30 минут;
из Нижневартовска до Омска — 1 сутки 5 часов 49 минут.
Маршрут поезда пролегает через крупные города: Ишим, Тюмень, Сургут. Самая длительная остановка — на станции города Сургут (40 минут).
В таблице представлено расписание поезда «Омич» на 2019 год (отправляется и прибывает по местному времени):
В каждом из них установлены кондиционеры для поддержания максимально комфортного климата в дороге и биотуалеты, о доступности которых сообщит электронное информационное табло. Для подзарядки гаджетов или использования бытовых приборов есть розетки 220В.
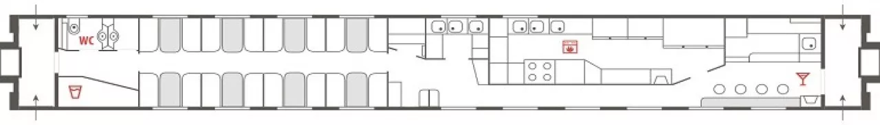
Схема купейного вагонаСхема штабного вагонаСхема плацкартного вагонаСхема вагона-ресторана
Класс обслуживания
Вагоны фирменного поезда «Омич» выполнены из экологически чистых материалов. В дороге пассажирам предоставляется широкий спектр услуг: комплект свежего постельного белья и полотенце, настольные игры, горячие и прохладительные напитки в ассортименте (за отдельную плату).
Просто перекусить или полноценно поужинать можно в уютном вагоне-ресторане. Выбор меню разнообразен: от аппетитных супов и второго до бизнес-ланча. Для маленьких пассажиров доступно детское меню. Люди с ограниченными возможностями или путешествующие с детьми могут заказать доставку блюд через проводника прямо в купе.
рацион питания
комплект постельного белья
тапочки, полотенце
санитарно-гигиенический набор
печатные издания
Плацкарт
аналогичен плацкартным вагонам других поездов
комплект постельного белья
полотенце
Стоимость билетов
Билеты на поезд «Омич» продаются за 90 дней до его отправления. Цена на них постоянно меняется, поскольку зависит от спроса на рейс. Также на стоимость билетов влияет класс обслуживания и дата покупки (чем раньше, тем дешевле).
Цена билета в вагон:
плацкарт — от 3300 рублей;
купе — от 5000 рублей;
купе для инвалидов — от 3300 рублей.
Узнать актуальную информацию о стоимости, найти подходящее место и купить билет на поезд «Омич» можно в кассе дальнего следования РЖД или онлайн на нашем сайте — быстро, надежно и удобно.
«Ласточка» — скоростные электропоезда ЭС1 и ЭС2Г, которые используются для пригородных, городских и региональных пассажирских перевозок. Данное семейство пассажирских электропоездов было специально создано по заказу ОАО «Российские железные дороги» немецкой компанией «Siemens AG». В частности, ЭС1 были произведены в г. Крефельд (Германия) на одноименном заводе конгломерата, а ЭС2Г — в г. Верхняя Пышма (Свердловская область) на заводе «Уральские локомотивы». Серии ЭС1П и ЭС2ГП также собирались в России по лицензии Siemens
Услуги для пассажиров поездов "Ласточка" Поезда "Ласточка" предлагают пассажирам различные уровни комфорта: от базового до бизнес-класса. В зависимости от выбранного вагона, доступны такие услуги, как кожаные кресла с регулировкой, мобильный бар, розетки для зарядки устройств, дорожные и детские наборы, пресса, а также гардероб и доступ к Медицентру. Пассажиры бизнес-класса также получают питание и возможность выбора меню. Дополнительно предоставлена информация о телефонах камер хранения забытых вещей на станциях Санкт-Петербург, Бологое и Великий Новгород.