«Псков» — скорый пассажирский поезд РЖД, занявший четвертое место в рейтинге фирменных поездов России. Он ежедневно перевозит пассажиров между Псковом и Москвой, предоставляя высокий уровень комфорта и сервиса. Ранее по прибытию поезда в родной город играла композиция «Я возвращаюсь в город Псков», сейчас ее отменили.
Маршрут
Фирменный состав курсирует по маршруту Псков — Москва и обратно. Он ежедневно отправляется со станции Псков-Пасс. под номером 010А и прибывает на Ленинградский вокзал столицы. В обратном направлении состав уходит со станции Москва-Октябрьская под номером 010Ч.
Расписание движения
По маршруту Москва — Псков фирменный поезд проходит расстояние в 687 км в среднем за 11 часов. Время следования в пути:
от Москвы до Пскова — 11 часов 42 минуты;
от Пскова до Москвы — 10 часов 44 минуты.
Состав в пути останавливается на 15 станциях. Самая продолжительная стоянка — на станции Бологое-Московское (30 минут).
Расписание фирменного поезда «Псков» на 2019 год представлено в таблице (время отправления и прибытия указано местное):
В состав фирменного поезда «Псков» входят только новые современные вагоны, принадлежащие ФПК и ТКС. Они полностью оборудованы биотуалетами, кондиционерами, электронными информационными табло и розетками 220В, энергосберегающими светильниками.
Состав поезда «Псков» включает вагоны:
1 СВ;
6 купейных;
7 плацкартных;
1 вагон с сидячими местами;
1 штабной;
1 вагона-ресторан.
Особое внимание в фирменном поезде «Псков» уделяется безопасности: установлены датчики дыма и камеры видеонаблюдения в коридорах вагона, круглосуточно дежурит наряд охраны.
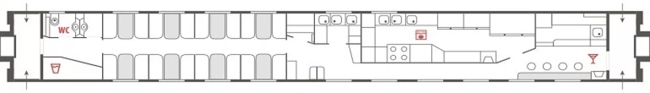
Схема вагона СВСхема купейного вагонаСхема плацкартного вагонаСхема штабного вагонаСхема сидячего вагонаСхема вагона-ресторана
Класс обслуживания
Фирменные поезд «Поволжье» предназначен для комфортабельного путешествия. Сервис и услуги в нем — на первоклассном уровне: вежливый и услужливый персонал, свежее постельное белье, мягкие полотенца, чистота в вагонах и туалетах. Пассажиры, путешествующие с питомцами, могут без труда взять их с собой в купе.
В таблице представлена краткая характеристика вагонов и перечень входящих в стоимость билета услуг:
рацион питания
постельное белье
санитарно-гигиенический набор
пресса
Плацкарт
аналогичен плацкартным вагонам в других поездах
постельное белье
Сидячий
аналогичен сидячим вагонам в других поездах
биотуалет
кондиционер
В поездке каждый пассажир может воспользоваться услугами разносной торговли и приобрести горячие и прохладительные напитки, ароматную выпечку, снеки и закуски, сувениры и свежую прессу. Скоротать время в пути можно и в уютном вагоне-ресторане, который порадует разнообразным выбором блюд: от супов до десертов, свежесваренным кофе и согревающим чаем.
Стоимость билетов
Поезд «Псков» включен в программу динамического ценообразования, поэтому билеты каждый день стоят по-разному. На цену влияет количество распроданных мест на конкретный рейс и тип выбранного вагона.
Стоимость билетов в вагоне:
сидячий — от 1200 рублей;
плацкарт — от 2100 рублей;
купе — от 3000 рублей;
купе (комфорт) — от 3100 рублей;
СВ (бизнес) — 7300 рублей.
Купить билеты на фирменный поезд сообщением Псков — Москва можно в кассе дальнего следования РЖД или онлайн на нашем сайте за 90 дней до отправления.
«Ласточка» — скоростные электропоезда ЭС1 и ЭС2Г, которые используются для пригородных, городских и региональных пассажирских перевозок. Данное семейство пассажирских электропоездов было специально создано по заказу ОАО «Российские железные дороги» немецкой компанией «Siemens AG». В частности, ЭС1 были произведены в г. Крефельд (Германия) на одноименном заводе конгломерата, а ЭС2Г — в г. Верхняя Пышма (Свердловская область) на заводе «Уральские локомотивы». Серии ЭС1П и ЭС2ГП также собирались в России по лицензии Siemens
Услуги для пассажиров поездов "Ласточка" Поезда "Ласточка" предлагают пассажирам различные уровни комфорта: от базового до бизнес-класса. В зависимости от выбранного вагона, доступны такие услуги, как кожаные кресла с регулировкой, мобильный бар, розетки для зарядки устройств, дорожные и детские наборы, пресса, а также гардероб и доступ к Медицентру. Пассажиры бизнес-класса также получают питание и возможность выбора меню. Дополнительно предоставлена информация о телефонах камер хранения забытых вещей на станциях Санкт-Петербург, Бологое и Великий Новгород.
Четвертый вагон скоростного поезда «Сапсан» относится к классу «Экономический». Как и другие вагоны фирменного
Отзывы пассажиров:
2
Алла
Если билет покупаем на маму и ребенка 11 лет - оформление стандартное, Как оформить/добавить третьим ребенка 9 лет в СВ (бизнес) ? Или просто без оформления билета ехать с документами?
Евгения
Начну с того, что езжу в поездах очень часто. Но!!!!! Эта поездка отличается очень. !Поезд 010 Псков- Москва. Вагон 13. Проводник АНАСТАСИЯ. Проводника не было видно всю дорогу. Приходилось искать чтоб заказать чай. Утром люди будили друг друга за несколько минут до прибытия. Проводник не прошла по вагону ни разу, ни кого не будила, ни говоря уже о предложении кофе/чая. Анастасию увидели только у вагона. Которая даже не прощалась. Стояла молча. В туалете не было туалетной бумаги. И это в туристическом поезде. Обслуживание кошмар.
Если билет покупаем на маму и ребенка 11 лет - оформление стандартное, Как оформить/добавить третьим ребенка 9 лет в СВ (бизнес) ? Или просто без оформления билета ехать с документами?
Начну с того, что езжу в поездах очень часто. Но!!!!! Эта поездка отличается очень. !Поезд 010 Псков- Москва. Вагон 13. Проводник АНАСТАСИЯ. Проводника не было видно всю дорогу. Приходилось искать чтоб заказать чай. Утром люди будили друг друга за несколько минут до прибытия. Проводник не прошла по вагону ни разу, ни кого не будила, ни говоря уже о предложении кофе/чая. Анастасию увидели только у вагона. Которая даже не прощалась. Стояла молча. В туалете не было туалетной бумаги. И это в туристическом поезде. Обслуживание кошмар.