«Россия» — первый фирменный поезд нашей страны, соединяющий столицу с Дальним Востоком. Состав впервые отправился в путь с перрона Ярославского вокзала Москвы в 1966 году и сразу приобрел популярность у пассажиров. Путешествие на главном поезде страны проходит по территории восьми железных дорог России и через шесть часовых поясов.
Вагоны фирменного поезда «Россия» легко узнать — они окрашены в цвет Российского флага. В сентябре 2016 года два состава получили тематическое оформление в рамках акции по защите амурских тигров и дальневосточных леопардов — на них изображены эти исчезающие виды.
Маршрут
Фирменный поезд «Россия» курсирует по самому протяженному пассажирскому маршруту в мире и преодолевает расстояние в 9288 км. Он начинает свой путь с Ярославского вокзала Москвы и завершает на вокзале Владивостока.
В дороге можно наглядно изучить географию нашей Родины. По маршруту Москва — Владивосток фирменный поезд «Россия» проходит через 11 областей, 5 краев, одну автономную область и одну республику, пересекает 16 крупных рек от Волги до Амура и Уссури.
Поезд следует круглогодично через один день:
из Москвы под номером 002Щ — по нечетным числам,
из Владивостока под номером 001М — по четным числам.
Нумерация вагонов указывается с «головы» состава при отправлении из столицы, с «хвоста» — при отправлении из Владивостока.
Расписание движения
Фирменный поезд «Россия» проходит расстояние между конечными станциями за 6 суток. Время следования в пути:
из Москвы до Владивостока — 6 суток 22 минуты;
из Владивостока до Москвы — 6 суток 2 часа 3 минуты.
По дороге поезд делает остановки в крупнейших городах страны: Нижнем Новгороде, Тюмени, Омске, Новосибирске, Красноярске, Иркутске, Чите, Уссурийске. Самая длинная остановка — на станции Чита (50 минут).
Актуальное расписание поезда «Россия» представлено в таблице (время отправления и прибытия местное):
Состав состоит только из современных вагонов, оборудованных биотуалетами, кондиционерами, розетками и электронными табло.
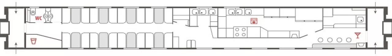
Схема вагона СВСхема купейного вагонаСхема штабного вагонаСхема плацкартного вагонаСхема вагона-ресторана
Класс обслуживания
В вагонах фирменного поезда «Россия» предусмотрено всё, что может понадобиться пассажирам в длительное поездке: холодильники, микроволновые печи, электрические плитки, душевые кабины, бытовые комнаты с феном, утюгом и гладильной доской. А если куплен билет с питанием, то горячий завтрак, обед и ужин доставят прямо в купе.
Каждая дверь купе снабжена электронным замком, который открывается специальной картой с микрочипом. Также для безопасности пассажиров в вагонах установлены видеонаблюдение и автоматическая пожарная сигнализация.
завтрак или ужин на выбор
постельное белье, полотенце, тапочки
дорожный гигиенический набор
печатные издания
Купе
2 нижние и 2 верхние полки шириной 70 см с откидным столиком
карта-ключ
телевизор
электрическая розетка
кнопка вызова проводника
питание
постельное белье
дорожный гигиенический набор
печатные издания
Плацкарт
аналогичен плацкартным вагонам в других поездах
постельное белье (за отдельную плату)
Вагон-ресторан
современный дизайн
широкий выбор горячих блюд, закусок, салатов, десертов
горячие и прохладительные напитки
заказ блюд с доставкой в купе
Стоимость билетов
Цена поездки по данному направлению зависит от спроса на рейс, типа вагона и даты покупки билета. Например, стоимость билетов на фирменный поезд «Россия» № 001М Владивосток — Москва составляет:
плацкарт — от 12 700 рублей;
купе — от 18 400 рублей;
штабной — от 12 400 рублей (места для инвалида и сопровождающего);
СВ — от 38 000 рублей.
Купить билет на фирменный поезд «Россия» можно в жд кассе или на povagonam.ru. Сайт является официальным партнером РЖД, поэтому при покупке билетов онлайн не взимается комиссия. Также вы можете оставить свой отзыв о путешествии на фирменном поезде «Россия».
«Ласточка» — скоростные электропоезда ЭС1 и ЭС2Г, которые используются для пригородных, городских и региональных пассажирских перевозок. Данное семейство пассажирских электропоездов было специально создано по заказу ОАО «Российские железные дороги» немецкой компанией «Siemens AG». В частности, ЭС1 были произведены в г. Крефельд (Германия) на одноименном заводе конгломерата, а ЭС2Г — в г. Верхняя Пышма (Свердловская область) на заводе «Уральские локомотивы». Серии ЭС1П и ЭС2ГП также собирались в России по лицензии Siemens
Услуги для пассажиров поездов "Ласточка" Поезда "Ласточка" предлагают пассажирам различные уровни комфорта: от базового до бизнес-класса. В зависимости от выбранного вагона, доступны такие услуги, как кожаные кресла с регулировкой, мобильный бар, розетки для зарядки устройств, дорожные и детские наборы, пресса, а также гардероб и доступ к Медицентру. Пассажиры бизнес-класса также получают питание и возможность выбора меню. Дополнительно предоставлена информация о телефонах камер хранения забытых вещей на станциях Санкт-Петербург, Бологое и Великий Новгород.
Четвертый вагон скоростного поезда «Сапсан» относится к классу «Экономический». Как и другие вагоны фирменного
Отзывы пассажиров:
3
Захирхан
Весной будущего года я хочу с друзьями путешествовать по маршруту поезда Россия, останавливаться в крупных городах на 2-3 дня и потом продолжить путешествие. Можно ли покупать один билет на такое путешествие или надо покупать билеты на каждый отрезок пути?
Светлана
Можно , выйти на станции на 2-3 дня , сначало оформить билет в кассе на след посадку . Законом это разрешается .
Ринат Агдамович
Информация уже устарела - теперь поезд 1/2 перестал быть фирменным и курсирует из Москвы ежедневно в 00:35, а в 23:45 курсирует поезд 61/62 уже московского формирования также до Владивостока- но не ежедневно....
Весной будущего года я хочу с друзьями путешествовать по маршруту поезда Россия, останавливаться в крупных городах на 2-3 дня и потом продолжить путешествие. Можно ли покупать один билет на такое путешествие или надо покупать билеты на каждый отрезок пути?
Можно , выйти на станции на 2-3 дня , сначало оформить билет в кассе на след посадку . Законом это разрешается .
Информация уже устарела - теперь поезд 1/2 перестал быть фирменным и курсирует из Москвы ежедневно в 00:35, а в 23:45 курсирует поезд 61/62 уже московского формирования также до Владивостока- но не ежедневно....