Поезд «Самара» — скорый пассажирский состав РЖД, получивший статус фирменного в 2005 году. За столь непродолжительный срок поезд стал визитной карточкой города, с комфортом доставляя пассажиров из Самары в северную столицу России и обратно.
Маршрут
Фирменный поезд следует по маршруту Самара — Санкт-Петербург — Самара через день по нечетным числам. В путь он отправляется с железнодорожного вокзала Самары и прибывает на станцию Санкт-Петербург — Главный. Из начального пункта отправления состав уходит под номером 107Й, а обратно из северной столицы — 107Ж.
Маршрут поезда «Самара» проходит по территории Самарской, Ульяновской, Пензенской, Рязанской, Московской, Тверской, Новгородской, Ленинградской областей и республики Мордовия. В пути он останавливается в крупных городах: Сызрань, Кузнецк, Пенза, Рязань, Москва, Тверь. Сама длительная стоянка — на станции Пенза-1 (45 минут).
Расписание движения
По маршруту Самара — Петербург поезд № 107Й проходит расстояние в 1846 км и делает остановки на 21 станции. Время следования в пути фирменного состава:
из Самары в Санкт-Петербург — 1 сутки 7 часов 15 минут;
из Санкт-Петербурга в Самару — 1 сутки 7 часов 29 минут.
Актуальное расписанием поезда на 2019 год представлено в таблице (время отправления и прибытия — местное):
В состав фирменного поезда «Самара» входят современные вагоны повышенного комфорта в корпоративной расцветке РЖД: спальные (СВ), купейные, плацкартные и штабной для людей с ограниченными возможностями. В каждом вагоне установлены пластиковые окна, система кондиционирования, биотуалеты, электронные панели для информирования пассажиров и розетки 220В.
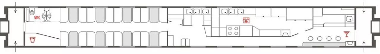
Схема вагона СВСхема купейного вагонаСхема штабного вагонаСхема плацкартного вагонаСхема вагона-ресторана
Класс обслуживания
Поезда «Самара» — это не только современные комфортабельные вагоны, но и квалифицированная бригада специалистов, которые предоставляют пассажирам первоклассный сервис. Из таблицы можно узнать, что входит в стоимость билета для различных типов вагонов фирменного состава:
Тип вагона
Характеристика
Сервис и услуги
СВ
мягкий диван
верхняя спальная полка
телевизор
душевая кабина
умывальник
розетка 220В
рацион питания
напитки
постельное белье
полотенца, тапочки
санитарно-гигиенический набор
пресса
рацион питания
постельное белье
полотенца
санитарно-гигиенический набор
пресса
Плацкарт
аналогичен плацкартным вагонам в других поездах
постельное белье
Ресторан
современный дизайн
богатое меню: салаты, горячие первые и вторые блюда, десерты, напитки
доставка пищи в купе
В дороге у проводников можно приобрести горячий чай, свежесваренный кофе, свежую ароматную выпечку, сувениры для родных и близких. В каждом вагоне установлены кулеры с чистой питьевой водой, а скоротать время можно за дружеским соревнованием в настольной игре или чтением прессы.
Стоимость билетов
Поезд «Самара» входит в программу динамического ценообразования — стоимость жд билетов постоянно варьируется и зависит от количества свободных мест на конкретную дату. На цену поездки также влияет тип выбранного вагона и класс обслуживания.
Стоимость билетов в вагоне:
плацкарт — от 4100 рублей;
купе — от 5800 рублей;
СВ — 11 500 рублей.
Билеты на фирменный поезд «Самара» продаются за 90 дней до его отправления. Купить жд билет можно в кассе дальнего следования на вокзале или онлайн на нашем сайте — официальном партнере РЖД.
«Ласточка» — скоростные электропоезда ЭС1 и ЭС2Г, которые используются для пригородных, городских и региональных пассажирских перевозок. Данное семейство пассажирских электропоездов было специально создано по заказу ОАО «Российские железные дороги» немецкой компанией «Siemens AG». В частности, ЭС1 были произведены в г. Крефельд (Германия) на одноименном заводе конгломерата, а ЭС2Г — в г. Верхняя Пышма (Свердловская область) на заводе «Уральские локомотивы». Серии ЭС1П и ЭС2ГП также собирались в России по лицензии Siemens
Услуги для пассажиров поездов "Ласточка" Поезда "Ласточка" предлагают пассажирам различные уровни комфорта: от базового до бизнес-класса. В зависимости от выбранного вагона, доступны такие услуги, как кожаные кресла с регулировкой, мобильный бар, розетки для зарядки устройств, дорожные и детские наборы, пресса, а также гардероб и доступ к Медицентру. Пассажиры бизнес-класса также получают питание и возможность выбора меню. Дополнительно предоставлена информация о телефонах камер хранения забытых вещей на станциях Санкт-Петербург, Бологое и Великий Новгород.