«Тамбов» — скорый пассажирский поезд, соединяющий города Тамбов и Москва. Почетный статус «фирменный» состав получил в 1994 году и по сей день его не утратил, перевозя пассажиров до столицы и обратно в максимально комфортных условиях. Ранее поезд включал только старые зеленые вагоны, сейчас почти все они заменены на современные, в серо-красных цветах РЖД.
Маршрут
Состав ежедневно курсирует по маршруту Тамбов — Москва — Тамбов. Пункт отправления — станция Тамбов-1, с которой поезд отбывает под номером 031В. Прибывает фирменный состав на Павелецкий вокзал столицы и уходит обратно уже под номером 031Ч.
Расписание движения
Между двумя конечными станциями ночной поезд «Тамбов» преодолевает расстояние в 476 км. Время следования в пути:
из Тамбова до Москвы — 9 часов 4 минуты;
из Москвы до Тамбова — 9 часов 30 минут.
Следуя по маршруту, поезд № 031В останавливается на 6 станциях. Самая длительная остановка — на станции Мичуринск-Уральский (29 минут).
В таблице представлено расписание поезда «Тамбов» на 2019 год (время отправления и прибытия — местное):
В состав фирменного поезда «Тамбов» входят вагоны:
1 спальный (СВ);
5 купейных;
10 плацкартных;
2 штабных (с местами для инвалида и сопровождающего);
1 вагон-ресторан.
Все вагоны — современные и принадлежат ФПК. Они оборудованы биотуалетами, розетками, информационными электронными табло, энергосберегающими светильниками и пластиковыми окнами.
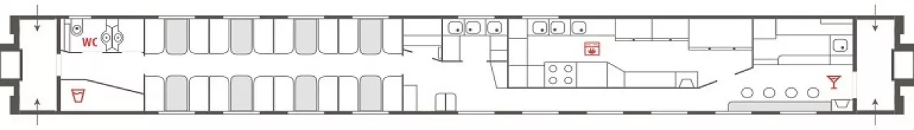
Схема вагона СВСхема купейного вагонаСхема штабного вагонаСхема плацкартного вагонаСхема вагона-ресторана
Класс обслуживания
Для перевозки пассажиров в фирменном поезде «Тамбов» используются только современные комфортабельные вагоны, изготовленные из экологически чистых материалов. В дороге предоставляется первоклассный сервис и услуги: белоснежное постельное белье и полотенца, санитарно-гигиенический набор, печатные издания, питание и напитки.
Скоротать время в пути за чашечкой кофе, просто перекусить или полноценно поужинать можно в вагоне-ресторане. В меню есть ароматные супы, свежие салаты и закуски, вторые блюда, десерты и разнообразные напитки. Пассажирам, любящим уединение, проводник организует доставку блюд прямо в купе.
Краткая характеристика вагонов и услуг, входящих в стоимость билета, представлена в таблице:
Тип вагона
Характеристика
Сервис и услуги
СВ
нижний мягкий диван
верхняя спальная полка
откидной столик
телевизор
душевая кабина
умывальник
горячее питание
постельное белье
полотенца, тапочки
санитарно-гигиенический набор
пресса
Купе
2 верхние и 2 нижние полки
откидной столик
защитные планки на полках
индивидуальные светильники
рацион питания
постельное белье
полотенца
санитарно-гигиенический набор
пресса
Плацкарт
аналогичен плацкартам в других поездах
постельное белье
полотенце
Стоимость билетов
Продажа билетов на фирменный поезд «Тамбов» стартует за 90 дней до отправления. Их стоимость постоянно варьируется и напрямую зависит от спроса на рейс, типа вагона и даты покупки проездного документа.
Цена билета составляет в вагон:
плацкарт — от 1700 рублей;
купе — от 1600 рублей;
СВ — от 5100 рублей.
Узнать точную информацию о наличии свободных мест и купить жд билет на фирменный поезд сообщением Тамбов — Москва можно в кассах дальнего следования РЖД или онлайн на нашем сайте.
«Ласточка» — скоростные электропоезда ЭС1 и ЭС2Г, которые используются для пригородных, городских и региональных пассажирских перевозок. Данное семейство пассажирских электропоездов было специально создано по заказу ОАО «Российские железные дороги» немецкой компанией «Siemens AG». В частности, ЭС1 были произведены в г. Крефельд (Германия) на одноименном заводе конгломерата, а ЭС2Г — в г. Верхняя Пышма (Свердловская область) на заводе «Уральские локомотивы». Серии ЭС1П и ЭС2ГП также собирались в России по лицензии Siemens
Услуги для пассажиров поездов "Ласточка" Поезда "Ласточка" предлагают пассажирам различные уровни комфорта: от базового до бизнес-класса. В зависимости от выбранного вагона, доступны такие услуги, как кожаные кресла с регулировкой, мобильный бар, розетки для зарядки устройств, дорожные и детские наборы, пресса, а также гардероб и доступ к Медицентру. Пассажиры бизнес-класса также получают питание и возможность выбора меню. Дополнительно предоставлена информация о телефонах камер хранения забытых вещей на станциях Санкт-Петербург, Бологое и Великий Новгород.