Фирменный поезд «Жигули»

Фирменный поезд «Жигули»

«Жигули» — скорый фирменный пассажирский поезд РЖД, курсирующий по маршруту Самара — Москва с 1964 года. Изначально состав назывался «Девятка», и лишь позже переименован в «Жигули» в честь горного массива Самарской губернии. Фирменный поезд пользуется большим спросом и перевозит более 20 000 путешественников ежемесячно.

Маршрут поезда «Жигули»

Состав ежедневно следует по маршруту Самара — Москва — Самара. Отправляется поезд со станции Самара под номером 009Й и на Казанский вокзал столицы. В обратном направлении поезд «Жигули» отправляется под номером 010Й. По пути состав делает остановки в трех городах: Сызрань, Рузаевка, Рязань.

Расписание движения поезда «Жигули»

Расстояние между двумя конечными станциями составляет 1044 км. Фирменный поезд «Жигули» проезжает его за 13 часов 3 минуты, развивая скорость до 120 км/ч. Состав отправляется вечером и прибывает рано утром (как из Самары, так и из Москвы).

«Жигули»: расписание поезда 10 Москва — Самара

В таблице представлено актуальное расписание поезда 10 «Жигули» Москва — Самара. Время указано московское.
Поезд № 010Й Москва — Самара
Станции Прибытие поезда «Жигули» Остановки Отправление поезда «Жигули»
Москва Казанская 20:08
Рязань-1 22:55 5 м 23:00
Рузаевка 03:32 12 м 03:44
Сызрань-1 07:34 4 м 07:38
Самара 09:11

Поезд «Жигули» Самара — Москва: расписание

В таблице представлена информация о расписании поезда 9 «Жигули» из Самары в Москву. Время указано московское.
Поезд № 009Й Самара — Москвы
Станции Прибытие поезда «Жигули» Остановки Отправление поезда «Жигули»
Самара 18:50
Сызрань-1 20:33 4 м 20:37
Рузаевка 00:18 12 м 00:30
Рязань-1 05:00 2 м 05:02
Москва Казанская 07:53

Фирменный поезд «Жигули»: схема подвижного состава

В состав фирменного поезда «Жигули» включены современные купейные вагоны:
  • класса «Люкс» — вагон № 1;
  • СВ — вагоны № 2, 3 и 4;
  • стандартные — вагоны № 5, 7, 8, 9, 10, 11, 12, 13.
Пассажиры с ограниченными физическими возможностями также могут устроиться в поезде в специальном просторном купе (штабной вагон № 6). Для желающих перекусить в пути открыт вагон-ресторан.
Схема вагона класса «Люкс»
Схема вагона класса «Люкс»
Схема спального вагона (СВ)
Схема спального вагона (СВ)
Схема стандартного купе
Схема стандартного купе
Схема штабного вагона
Схема штабного вагона
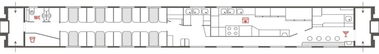
Схема вагона-ресторана
Схема вагона-ресторана

Сервис и обслуживание в поезде «Жигули»

Все вагоны фирменного состава оборудованы биотуалетами, микроволновыми печами, розетками 220 В в каждом купе, Wi-Fi. Пассажиры могут рассчитывать на:
  • застеленное спальное место;
  • просмотр фильмов и телепередач;
  • медикаменты и средства первой помощи.
Ниже представлен перечень услуг, включенных в стоимость билета для разных типов вагонов:
Тип вагона Сервис и услуги
«Люкс» телевизор и DVD-проигрыватель кондиционер беспроводной интернет отдельный туалет, умывальник и душевая кабина в каждом купе новое постельное белье, полотенце, халат
СВ кондиционер кулер питание (заказ блюд из фиксированного меню в вагоне бизнес-класса) свежая пресса дорожный гигиенический набор настольные игры щетки для чистки одежды и обуви
Купе кулер питание (в вагонах повышенной комфортности) свежая пресса дорожный гигиенический набор настольные игры щетки для чистки одежды и обуви
За дополнительную плату можно заказать блюда из вагона-ресторана с доставкой в купе, приобрести у проводника сувенирную продукцию, печатные издания и средства гигиены.

Стоимость билетов на фирменный поезд «Жигули»

Стоимость билетов по направлению Самара — Москва — Самара зависит от спроса на рейс и типа вагона. Соответственно, чем выше спрос, тем дороже поездка. Билет на поезд «Жигули» обойдется в стандартное купе — от 3197 рублей, в спальный вагон — от 7973 рублей. Дороже всего стоят места в вагон класса «Люкс» — от 15 839 рублей. Если планировать поездку заблаговременно, то можно сэкономить на билете. Например, получить 30% скидку на верхние места в купейном вагоне. Продажа билетов стартует за 90 дней до отправления фирменного поезда «Жигули». Купить билеты можно в кассе РЖД дальнего следования или онлайн на нашем сайте по той же цене (никаких комиссий и переплат).

Понравилась статья? Поделиться с друзьями:

Отзывы пассажиров: 1

  1. Сергей

    В купе, уже давно, не предоставляется: свежая пресса, дорожный гигиенический набор, настольные игры, щетки для чистки одежды и обуви.

Оставить отзыв: